25 W 88th Street
25 W 88th Street
SEE ALL PHOTOS
25 W 88th Street
25 W 88th Street
Sold

25 W 88th Street

25 W 88th Street, New York City, NY 10024

$17,000,000
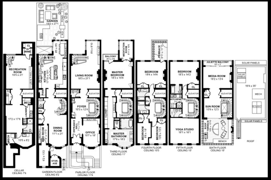
Designed by architects Thom & Wilson in 1889, 25 West 88th Street is one of the finest renovated single-family townhouses on the Upper West Side. This triple mint home is among the first in Manhattan to receive a national designation as a Platinum Certified LEED Home and Passive Energy Certification. Spread across over 8,000 square feet of interior living space and seven floors are six bedrooms plus several activity rooms leaving space for exercise, meditation and crafts. The recent renovation was the work of Baxt/Ingui Architects, the top NYC LEED and Passive home builders, Robert Taffera Inc., renowned builders of brownstone homes. This collaboration resulted in a masterpiece of design, energy efficiency, healthy living, and exquisite details.

Key features of the home include:

- Recent gut rehab of interior and new brownstone replacement of the historic 1885 exterior

- High speed elevator (100 ft/sec) stops at all seven levels, including cellar and penthouse

- Large eat-in chef's kitchen outfitted with Gaggenau, Wolf, Sub-Zero and Miele appliances

- 42" Wolf barbecue grill with dedicated gas line in backyard

- 500 bottle wine cellar

- Penthouse terrace with outdoor gas fireplace

- Upper floor kitchenette for guests and penthouse entertaining

- AV speakers throughout house and exterior areas with server controlled by iPads and iPhones

- Bathrooms throughout house appointed with Waterworks fixtures

- Steam shower adjacent to studio appointed for yoga, dance, art and entertainment

- EcoSmart Fireplaces provide instant, smoke-free fires requiring no clean up

- Lutron HomeWorks System control of all lighting and shades allows for automatic on/off dimming to match owner schedules and remote-control access from iPhones and iPads

- Security motion detectors, video cameras and alerts with remote control via iPhone or iPads

- Penthouse terrace and staircase to rooftop

- Koi Pond and granite sculpture with year-round circulation system

- Custom rear yard fencing and penthouse benches made from recycled Coney Island boardwalk

- Continuous hospital grade (HEPA 13) filters and plasma ionizers create superior air quality by eliminating all microbes, odors and other contaminants

- Tensui System's triple filtration of water supply eliminates all microbes, toxins and unwanted metals from drinking, cooking and cleaning water throughout the whole house

- Whole house humidification system provides relief from cracked skin, dry eyes and sinus blockage

- Crestron control of HVAC coupled with superior insulation creates draft-free, equalized temperatures throughout the entire house for remarkable year-round comfort

- Zola tilt-and-turn European-designed triple pane glass windows a create noticeably quieter, more relaxing environment

- Back-up gas fired generator protects against electric grid brown-outs and black-outs

- Solar panels provide up to 5KV of energy generation

- Superior insulation, windows/doors, LED lighting and energy generation result in significant savings

- LEED Platinum Award & Passive House Award

- Finished, well lit and ventilated cellar with full glass rear window that is easily accessed by a rear staircase from the kitchen or via elevator.

Located on one of the most beautiful tree-lined blocks on the Upper West Side, steps from Central Park, top schools, fine dining, and public transportation, 25 West 88th Street offers premier City living in the form of a design masterpiece.

6
beds

8
baths

8,068 Sq.Ft. LIVING AREA

2,014 Sq.Ft. lot

Tom Wexler

Tom Wexler

Features & Amenities

Interior

  • total bedrooms6
  • Total bathrooms8
  • full bathrooms6
  • half bathrooms2
  • Laundry room Common On Floor, In Unit
  • APPLIANCES Dryer, Washer/Dryer Stacked, Dishwasher, Washer
  • other interior Features Den, Entrance Foyer, Eat-in Kitchen, Elevator, Kitchen Window, Storage

Area & Lot

  • Status Sold
  • Living Area8,068 Sq.Ft.
  • Total Area1,400 Sq.Ft.
  • Lot Area2,014 Sq.Ft.
  • MLS® IDRLS10948447
  • TypeResidential
  • YEAR BUILT1888
  • Architecture StylesPrewar

Exterior

  • STORIES5
  • lot featuresGarden
  • AIR CONDITIONINGCentral Air
  • other exterior FeaturesBuilding Garden, Garden

Financial

  • Sales Price$17,000,000
  • Real Estate Tax $129,612/yr

Work With Us

We provide our clients with a tailor-made marketing plan, suited to their particular property and their objectives. Contact us today!

Follow Us on Instagram